熱門資訊
盛賽爾JTY-GD-8100S吸氣式感煙火災探測器接線槽示意圖
發布時間 : 2016-12-19 16:18:48
作者 : 網站制作
JTY-GD-8100S吸氣式感煙火災探測器屬于一種高級微粒探測系統,通過系列的采樣孔不斷地在其所監控的環境中(-大覆蓋面積為1200平方米)進行空氣采樣,以此來檢測所處環境的煙粒濃度,它的接線端子排隱藏于正面蓋板下方,不僅美觀而且也便于安裝接線以及后期的線路檢測。
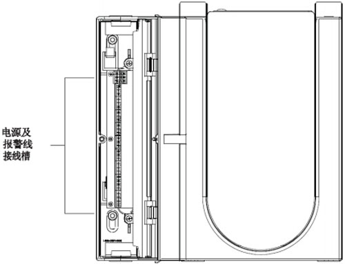
下面是它的電源與報警線接線槽示意圖

JTY-GD-8100S探測器電源與報警線接線槽示意圖